彰化縣漢寶國小全球資訊網
首頁
(current)
公告系統
檔案庫
學校介紹
學校概況
沿革史
我們的校長
教師專區
雲端學務系統
全國教師在職進修資訊網
彰化openID登入
教育雲
教育部磨課師
因材網
教師雲端office365
科技化評量
均一教育
彰化縣公文整合系統
教育處新雲端
彰化縣公開授課系統
圖書系統
教育部電子郵件
學校資料平台
Google學校應用服務
學生專區
彰化openID登入
ICRT英語廣播電台
酷英網
PaGamO素養學習網
教育雲線上學習平台
因材網
學習扶助科技評量網
均一教育平台
canva
三分鐘打字小遊戲
scratch
學習吧
加分吧
Hour of Code
故宮線上學校
登入
首頁
公告列表
公告內容
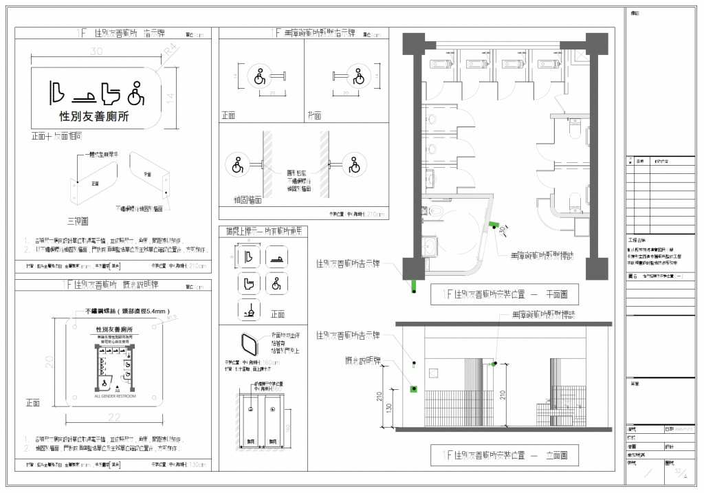
性別友善廁所規劃設計示意圖
上一則公告
下一則公告
一般公告
/ 張貼者
總務主任
張貼日期: 2025-11-27 10:17:46 點閱:
30
漢寶國小北棟教室西側老舊廁所整修工程委託規畫設計監造技術服務案
相關照片
近月內熱門公告
2025-11-05
42
教育部製作防制依托咪酯廣播廣告
2025-11-07
39
【健康促進宣導】衛生福利部國民健康署製作「《FIT 動起來》MV...
2025-11-14
39
【全民國防宣導】臺灣全民安全指引手冊《當危機來臨時:臺灣全民...
2025-11-05
38
【交通安全宣導】為提升縣民交通安全觀念,縣府製作2支30秒橫式...
2025-11-05
37
【交通安全宣導】本縣114年1-7月道路交通事故死傷累計18,112人,...
2025-11-05
36
舞動陽光股份有限公司受託管理「彰北國民運動中心」115年冬令營...
2025-11-11
36
彰化縣文化局發行之114年11月號「藝文快訊」月刊電子書線上閱讀...
2025-11-14
35
「彰北國民運動中心」115年冬令營運動休閒課程簡章
2025-11-13
34
教育部「113-115年臺灣台語卡通、動畫字幕製作及配音工作計畫」1...
2025-11-20
33
轉知國家發展委員會檔案管理局定於本114年11月22日舉辦國家檔案...
2025-11-20
30
【交通安全宣導】交通部製作之「減速停讓,安全MVP就是你」等影...
2025-11-27
30
性別友善廁所規劃設計示意圖
2025-11-20
29
【交通安全宣導】本縣114年1-8月道路交通事故死傷累計20,913人,...
2025-11-27
26
轉知彰化縣立二林高級中學與二林鎮公所辦理二林四鄉鎮「早知道早...
2025-11-25
25
轉知教育部為「全民+1 政府相挺」普發現金領取及防詐事宜
2025-12-01
13
交通部公路局「TPASS 2.0+公共運輸常客優惠回饋」措施
2025-12-02
12
教育部114年文化幣領用期限將於114年12月31日屆期,請符合資格者...
2025-12-02
11
彰化縣政府辦理「數位女力大作戰-婦女數位學習與防詐課程」,鼓...
2025-12-02
11
有關114年度非公費流感疫苗增購部分,本縣衛生局將接種日期延後...
置頂至哪一天?
×